Foam Projecten

Aanvraag voor het maken van 3 woonappartementen en het pand splitsen in 3 woonappartementen

Aanvraag voor het maken van 3 woonappartementen en het pand splitsen in 3 woonappartementen

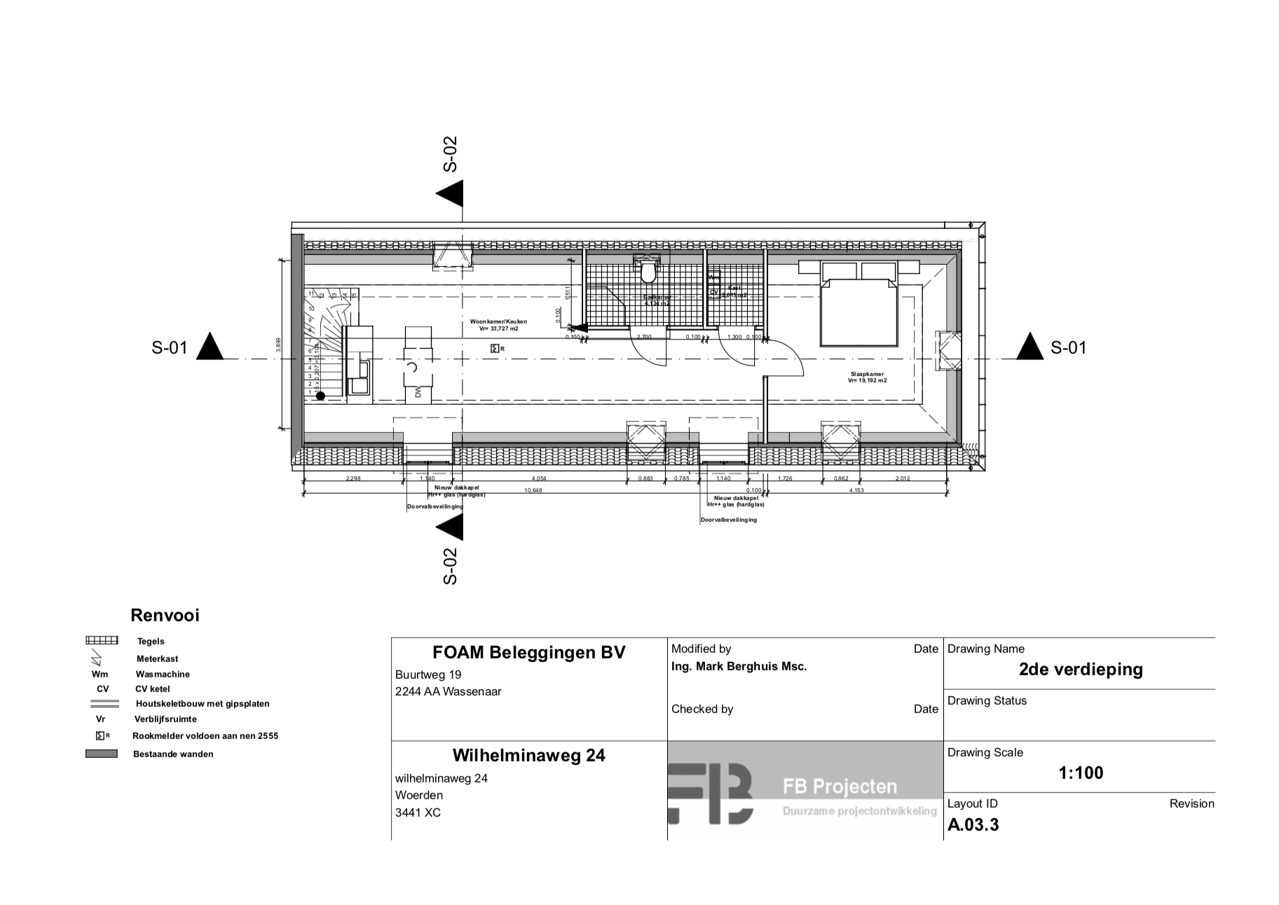
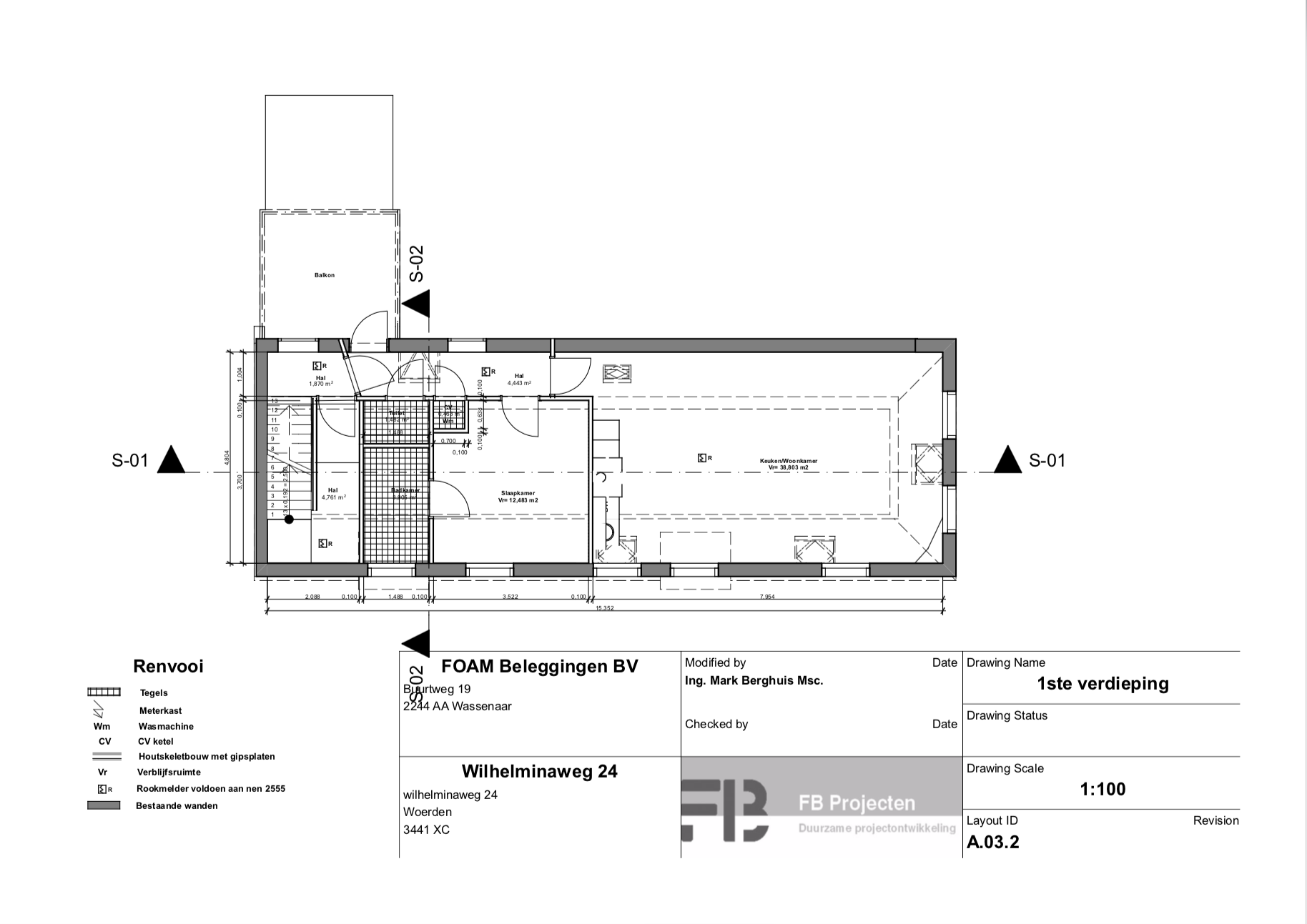
Het project in Woerden is oorspronkelijk een bedrijfspand met woning. Voor het pand is een aanvraag gedaan voor het maken van 3 woonappartementen en het pand te splitsen in 3 woonappartementen. Na de aanvraag en de verleende vergunning heeft Foam Projecten het gehele pand intensief gerenoveerd.

SHARE PROJECT